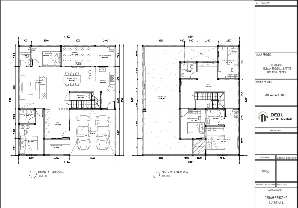
Project Mr. AH - Bekasi

Deskripsi

Wujudkan Rumah Impian Bergaya Japandi Minimalis di Jatiasih - Bekasi.

Selamat datang di portofolio proyek terbaru kami! Kami bangga mempersembahkan karya terbaru kami, proyek pembangunan rumah klien di kawasan Jatiasih, Bekasi, dengan sentuhan desain yang sedang tren, Japandi Minimalis.

Sebagai kontraktor tepercaya, kami berkomitmen untuk mewujudkan setiap detail dari visi klien kami. Proyek ini bukan sekadar membangun struktur fisik, tetapi juga menciptakan hunian yang nyaman, fungsional, dan memiliki nilai estetika tinggi, selaras dengan prinsip desain Japandi.

Apa itu Desain Japandi?

Japandi adalah perpaduan harmonis antara estetika fungsional Skandinavian dan keanggunan minimalis Jepang. Gaya ini berfokus pada:

  • Kesederhanaan dan Kehangatan: Menciptakan ruang yang tenang, lapang, dan nyaman.

  • Fungsi dan Kerapian: Menghilangkan elemen yang tidak perlu untuk menciptakan ruang yang lebih bersih dan teratur.

  • Koneksi dengan Alam: Penggunaan material alami seperti kayu dan tanaman untuk menghadirkan ketenangan alam di dalam rumah.

Keunggulan Proyek Kami:

  • Desain Kustom yang Personal: Setiap sudut rumah dirancang khusus sesuai dengan kebutuhan dan gaya hidup pemiliknya, dengan mengedepankan prinsip Japandi.

  • Kualitas Bahan Terbaik: Kami menggunakan material berkualitas premium, terutama kayu asli dan material alami lainnya, untuk memastikan kekuatan, ketahanan, dan keindahan bangunan dalam jangka panjang.

  • Pengerjaan Detail dan Rapi: Tim kami yang profesional dan berpengalaman bekerja dengan teliti untuk menghasilkan pengerjaan yang presisi dan minim cacat, sesuai dengan filosofi kesempurnaan ala Jepang.

Kami mengundang Anda untuk melihat bagaimana kami mengubah sketsa menjadi kenyataan. Proyek ini adalah bukti nyata dedikasi kami dalam memberikan pelayanan terbaik dan hasil yang melampaui ekspektasi.

Jika Anda memiliki impian untuk membangun atau merenovasi rumah dengan sentuhan desain Japandi atau gaya lainnya, jangan ragu untuk menghubungi kami. Mari wujudkan hunian impian Anda bersama kami!

Hubungi Kami

Ingin bangun rumah? konsultasikan konstruksi Anda bersama kami sekarang!

chat whatsapp
image

Copyright ©2026 PT. Desain Engineering Arsitektur Logistik. CREATED BY IDVITECH